Description
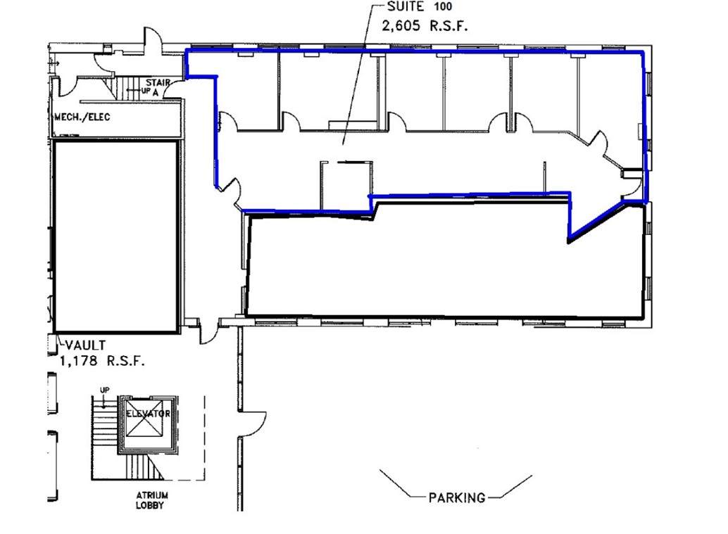
Well-appointed office suite with 2,605 rentable square feet and a highly functional layout. This space features five spacious 12'x12' offices and one 17'x12' conference room, along with a welcoming reception area, IT room and a wide hallway that can serve comfortably as a bullpen or waiting area. The offices boast nice high ceilings and large windows that provide abundant natural light, creating a bright and productive work environment. Ground floor unit in a small historic building. The space is offered on a modified gross lease. Tenant is responsible for phone and internet services, while the landlord covers all other utilities. Assigned parking is included, and tenants enjoy access to a shared break room and private restrooms.
-
0BEDS
-
0.54ACRES
-
0BATHS
-
61/2 BATHS
-
14,095SQFT
-
$0$/SQFT
School Information
Description
Well-appointed office suite with 2,605 rentable square feet and a highly functional layout. This space features five spacious 12'x12' offices and one 17'x12' conference room, along with a welcoming reception area, IT room and a wide hallway that can serve comfortably as a bullpen or waiting area. The offices boast nice high ceilings and large windows that provide abundant natural light, creating a bright and productive work environment. Ground floor unit in a small historic building. The space is offered on a modified gross lease. Tenant is responsible for phone and internet services, while the landlord covers all other utilities. Assigned parking is included, and tenants enjoy access to a shared break room and private restrooms.
